▲ 建筑面积60平,玄关新增一面综合隔断,端景,展示于一体的墙面,并解决风水问题
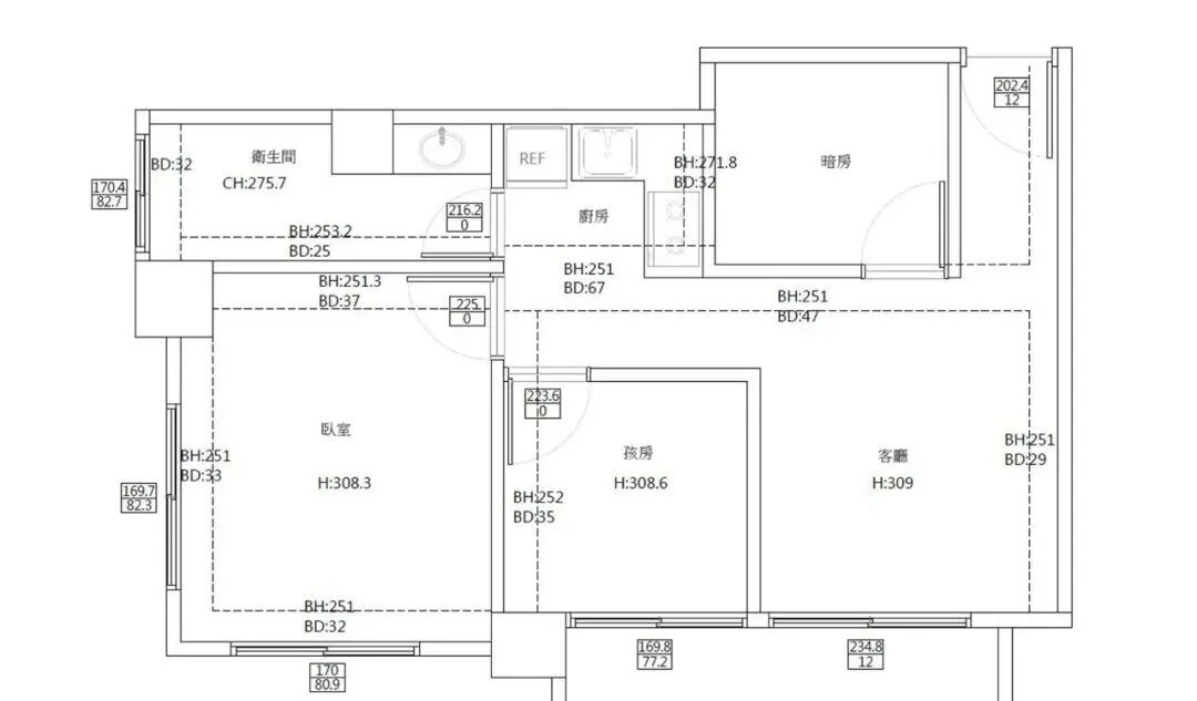
▲ 平面结构图
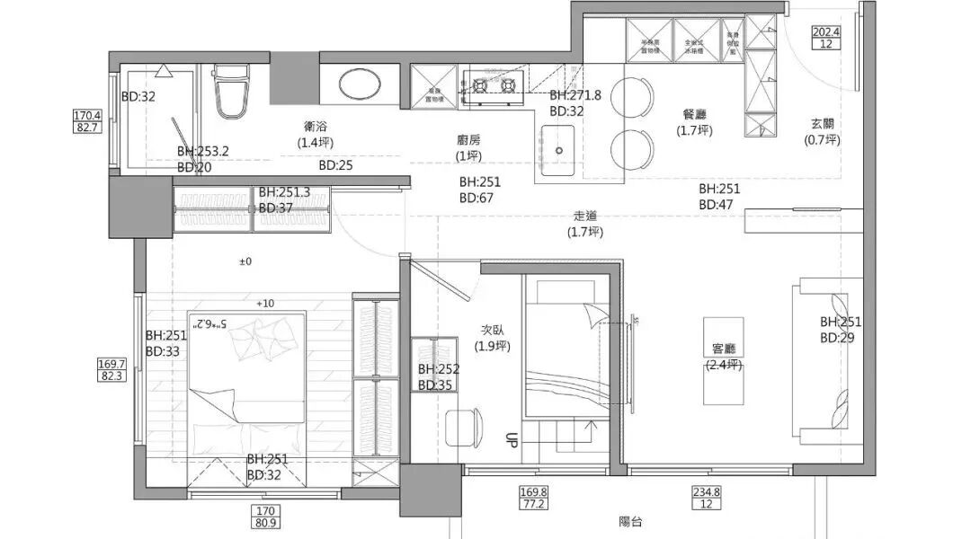
▲ 平面布置图
▲ 隔断墙面采用意大利进口仿丝绒涂料搭配鹿头作装饰,中间留空辅以灯光与绿植,并利用侧面作酒柜,更赋创意
▲ 客厅地面通铺明亮帝诺大理石,亮面效果让小居室空间有扩大的视觉感
▲ 大地色系搭配粉橘、苍绿、宝蓝,在沉稳暖意中多了粉色缤纷,营造出暖调而高雅的北欧气息
▲ 空间有限,尽量利用墙面,柜体,创造出更多机能空间,玄关墙另一侧就是充满工艺细节的书柜
▲ 电视墙采用意大利特殊涂料,延伸至次卧隔墙,经纬线沟缝应用则多了宽度与高度的延伸感
▲ 客厅望向餐厨区域
▲ 拆除原有的暗房,打散再重组成客餐厨空间,让公领域的起居区域有了更理想的动线
▲ 餐厨领域依照一家人需求量身订制,考虑到人口简单,于是以中岛吧台取代餐桌
▲ 在料理台墙面加入彩印玻璃,印出蓝色海滩的意象,让没有窗户的厨房也能纳入浪漫的海景画面
▲ 天花梁柱与柜体皆使用 KD 实木板饰面,融入1公分的细腻沟缝处理,即运用线条的延伸扩大空间视觉感
▲ 从电视墙面上,即运用线条的延伸,转折导引进入次卧的动线,以线条作出门片隐形化的细致处理
▲ 次卧,木作一体成形的复合式床架,把单层空间作出双层模式,借着机能向上延伸,并有效利用
▲ 主卧,架高复合式木地板作地台,以贴地的床具形式保留开放感
▲ 床头保留窗面采光,使屋内丝毫不显压抑,在简约中更需注重细节,才得以彰显品味
▲ 柜体旁梁下畸零处做造型层架,搭配射灯与灯带,也可以独自成为晚上就寝时的一处夜灯光源
▲ 利用床尾空间规划足够的衣柜,满足卧室收纳,不施作到顶的设计,让收纳功能更人性化,同时也避免置顶柜体带来过重压迫感
▲ 卫生间使用香桧木封顶,小空间洗浴时可呼吸天然香氛,把门内移,洗手台外置,提高使用效率
▲ 在淋浴间内砌矮墙成浴缸,小居不将就,泡澡、淋浴、智能马桶一应俱全


